PRESALE-VANCOUVER.CA

Autograph


Closed for Construction and over 90% sold!

CLASSIC WESTSIDE Off Cambie
The next step in your life story begins at Autograph, a collection of 64 one, two and three-bedroom signature homes in two timeless, four-storey buildings. In this fifth chapter of the esteemed Cambie Collection, Pennyfarthing Homes has married traditional brick architecture with the latest in tech-enabled design. This is classic westside charm, yet only minutes to the urban conveniences of Cambie.

The Fifth Chapter in the Cambie Collection – Now Off Cambie
The newest addition to the sought-after Cambie Collection, presented by renowned Vancouver developer, Pennyfarthing Homes, with over 40 years of experience
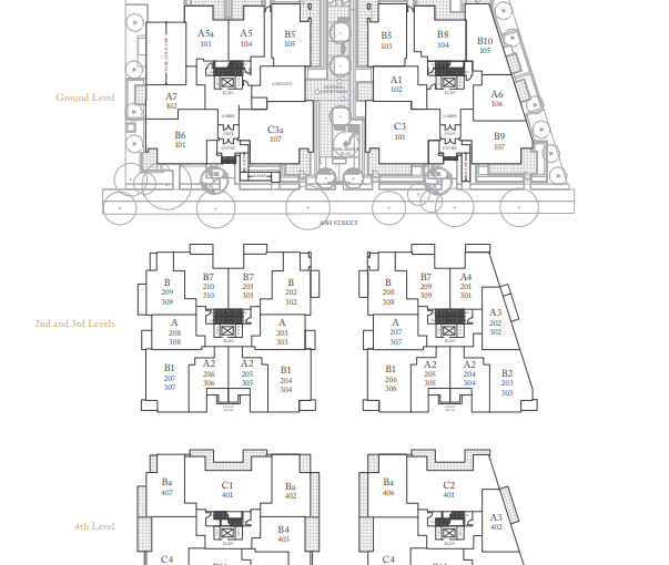
A signature collection of 64 modern one, two and three-bedroom homes shared between two classically designed, four-storey buildings
Bold architecture by award-winning Vancouver firm, Rositch Hemphill Architects, celebrating timehonoured craftsmanship with traditional exterior elements
Conveniently located just off Cambie, a short stroll away from the boutique Cambie village, and easy commutes to anywhere in the city including YVR, UBC and beyond
Situated on peaceful, tree-lined Ash Street in a distinguished residential area of Vancouver’s Westside for a quiet, yet accessible way of life
Minutes from iconic Queen Elizabeth Park, a 130-acre public garden with a network of trails and various outdoor recreation
Centralized courtyard with paving stones and children’s play area serves as a warm, inviting outdoor living space for all residents to enjoy
Private patios, terraces, and balconies include natural gas BBQ hookups for every home, plus 24”x24” concrete pavers and hose bib on ground-level patios and top-level terraces
Built by Trillium Projects, a trusted name in construction and project management for more than 20 years

Inspired Interiors
Perfectly appointed contemporary interiors designed by House of Bohn, an award-winning firm renowned for creating spaces that enhance daily life
Rare ceiling heights up to 9’ 6” in living spaces and 7 ft solid core doors that create a spacious and penthouse style experience throughout*
Choice of sophisticated dark scheme with walnut finishing or refined light colour schemes with white oak finishing
Optional carpeted bedrooms and engineered hardwood flooring throughout living spaces provide the perfect canvas for any style of décor
Convenient, top-of-the-line front-loading LG
Washer/Dryer combo – complete with quartz countertops in select homes
Contemporary roller shades that allow you to regulate sunlight and preserve privacy with ease

Gourmet Kitchens
Every home boasts an integrated stainless-steel gourmet appliance package that includes:
• Bosch 30” five-burner gas cooktop
• Bosch 30” pull-out hood fan with custom panel to match cabinetry
• Bosch 30” wall oven
• Bosch 30” speed oven combines classic ovenwith microwave technology
• Bosch 24” custom panel dishwasher
• Bosch 30” full-height custom panelled fridge and bottom freezer that seamlessly blend into finely crafted cabinetry
Marvel under-counter wine fridge in select homes ensures the perfect pairing is always preserved at the optimal temperature and ready to serve
Elegant champagne bronze hardware throughout
White or grey Silgranit Super Single sink with a 9-1/2” stone composite & resin bowl
Under-sink anti-bacterial pull-out waste bin drawers to organize recycling and trash
Optional 3” thick, square-edge quartz countertops with plenty of food-prep surface, in light or dark colour option (standard in top level homes & 3 beds)

Stunning Bathrooms
Clean, modern lines are accentuated by porcelain tile mosaics on shower floor and 12” x 24” statement-sizetiles on ensuite floor and walls
Ensuite bathrooms include stunning contemporary vanity design with champagne bronze hardware, open shelving and sleek, refined cabinetry in a crisp white oak or warm dark walnut
Ensuites boast 3” thick, square-edge quartz countertops that make a statement
Soft downlit light fixture creates a warm and inviting environment, with Nuheat in-floor heating in ensuites for ultimate comfort
High efficiency toilet with elongated bowl and water-saving dual flush

Intelligent Home Solutions
Seamlessly integrated 1Valet enterphone panel in each building adds security and ease to your everyday living with the following features:
• Resident app controlled from your smart phone to keep everything in one place
• Facial recognition entry
• Video calling to enterphone
• Contactless mobile phone entry
• Amenity booking platform
• Digital lockbox (ability to generate one-time access code for vendors/friends and family)
• Access logs for entrances
• Customizable background
• SMS visitor entry, landline/cell phone visitor entry
• Parcel scanning entry access and delivery notification to residents via text message and/ or app/email
Autograph’s optional Work From Home Package offers next-level, modern living convenience with timesaving, stress-reducing technology that will
improve your quality of life and support a healthy live/work integration:
• Wall-mounted iPad to manage all in-home tech and building access for guests & deliveries
• Energy-saving Leviton lighting control system, and smart self-learning Nest thermostat
• Built-in tech desks that create ergonomic creatives spaces for study and/or for work, available in 48” and 60” widths to match kitchen colour schemes (select homes)
Autograph’s Signature Library amenity room features fully equipped individual work pods with task lighting and high-speed internet connection, as well as a communal harvest table for hosting meetings, book clubs or celebrations

Everyday Convenience & Well-Being
Green building policy certified
Parking included in every home
Dedicated dog wash station with table and hot/cold hose line
Roughed-in 240V electric vehicle stalls
Car wash station
Secured parcel room easily managed through 1Valet system
Comprehensive National 2-5-10 Home Warranty
Air conditioning with VRF 2-pipe fan coil with heating and cooling function


Facts and Features
Property Type
Condos
Builders
Pennyfarthing Homes
Sublocation
Vancouver
Estimated Completion
2023
Number of Floors
4
Number of Units
64
Bedrooms
1-3.5
Condo Amenities
  • Childrens Play Area
  • Car and Dog Wash Station
  • Library
  • Outdoor Space

Deposit Structure

$10,000 with offer
Increased to 10% within 7 days of acceptance to offer
Additional 10% 14 days following Amendment to Disclosure


Location
5005 Ash Street, Vancouver, BC

Similar Listings

1335 Howe


Sublocationvancouver

Builders
Onni Group of Companies
Bedrooms
1-3.5

1515 Rupert


SublocationNorth Vancouver

Builders
Areva Living
Bedrooms
3-4

1700 Alberni


SublocationVancouver

Builders
Bosa Properties and Kingswood Properties
Bedrooms
N/A

1818 Alberni


SublocationSTANLEY PARK

Builders
Landa Global Properties
Bedrooms
1, 2, 3

2 Burrard Place


Sublocation

Builders
Reliance Properties and Jim Pattison Developments Ltd.
Bedrooms
N/A

331 Riverside Drive


SublocationNorth Vancouver

Builders
Darwin Properties
Bedrooms
N/A

601 Beach Crescent Condos


SublocationVancouver

Builders
Pinnacle International
Bedrooms
N/A

8X ON THE PARK


SublocationVancouver

Builders
Brenhill Developments
Bedrooms
1-3.5

ACE


SublocationVancouver

Builders
Wesgroup
Bedrooms
N/A

    Inquire About This Presale

     I'm an agent

    sign up to register for our exclusive VIP list

    Register Now